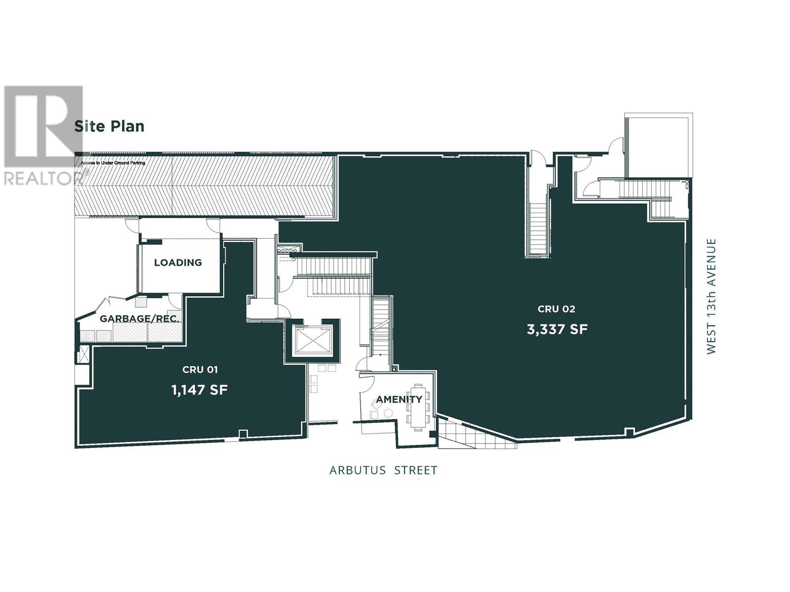
Under construction Retail space for Sale. located in the vibrant neighbourhood of Arbutus, lots of car traffic, and tons of exposure frontage facing Arbutus St. The development is currently expected to include 22 Strata lots, 5 mins walking distance to the future Arbutus & Broadway skytrain station, and right beside the pedestrian street of Arbutus Greenway. perfect for any entrepreneur looking to make their mark. Contact us for for more information! (id:48970)
Show More