Link to: Contact
Any Questions? Feel free to write us a mail!
Contact Us
Royal Lepage Sussex, 2996 LONSDALE AVENUE, NORTH VANCOUVER, BC V7N 3J4
Phone: +1 (604) 351-3408 | Email: david@vcre.net
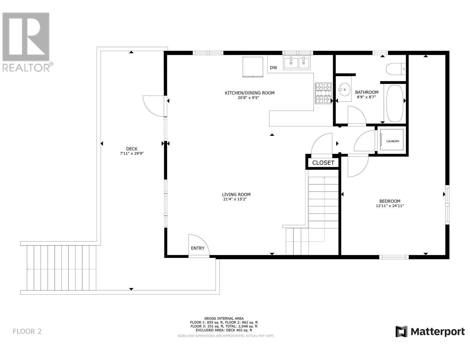
| Type | Level | Dimension |
|---|---|---|
| Primary Bedroom | Above | 16 ft x 13 ft |
| Kitchen | Basement | 12 ft x 10 ft ,1 in |
| Living room | Basement | 16 ft x 15 ft |
| Bedroom 3 | Basement | 11 ft x 9 ft |
| Bedroom 4 | Basement | 12 ft x 10 ft |
| Kitchen | Main level | 10 ft x 8 ft |
| Dining room | Main level | 9 ft ,1 in x 8 ft |
| Living room | Main level | 16 ft x 17 ft |
| Bedroom 2 | Main level | 13 ft x 12 ft ,1 in |